| 管理番号 | 00103 | |||||||||||||
| 物件名 | 花見川区浪花町中古戸建 | |||||||||||||
| 価格 | 3,599万円 | |||||||||||||
| 路線 | JR総武線「新検見川」駅 徒歩5分 | |||||||||||||
| その他交通 | ||||||||||||||
| 所在地 | 千葉県千葉市花見川区浪花町 | |||||||||||||
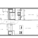
| 階数・所階階 | 2階建 | 間取り | 3LDK | 間取り内訳 | LDK18・洋6・×3 | |||||||||
| 築年月 | 2000年3月 | 築年数 | 構造 | 木造スレート葺2階建て | ||||||||||
| 土地権利 | 所有権 | 地目 | 宅地 | 地勢 | 平坦 | |||||||||
| 都市計画 | 市街化区域 | 用途地域 | 第一種低層住居専用地域 | 面積 | 土地:102.01㎡ 建物:91.91㎡ | |||||||||
| 建ぺい率 | 60% | 容積率 | 150% | |||||||||||
| 接道 | 北東側5m公道 | |||||||||||||
| セットバック | ||||||||||||||
| 法令上の制限 | ||||||||||||||
| 駐車場 | 有 | バイク置き場 | 駐輪場 | |||||||||||
| 管理形態 | 管理会社 | |||||||||||||
| 管理費 | 修繕積立金 | |||||||||||||
| 現状 | 空室 | 引渡時期 | 相談 | 引渡条件 | リフォーム後渡 | |||||||||
| 設備 | 上水道、公共下水、都市ガス | |||||||||||||
| 備考 | ||||||||||||||
| 取引態様 | 仲介 | |||||||||||||







