- ウェルシア100m,ランドロームフードマーケット140m, エレベーター,セブンイレブン290m, ヨークフーズ300m, サンドラッグ350m
- マツモトキヨシ400mm ,リブレ京成500m,
- 勝田台小学校600m, , 勝田台中学校950m
| 管理番号 | 00102 | |||||||||||||
| 物件名 | 勝田台マンション | |||||||||||||
| 価格 | 1,690万円 | |||||||||||||
| 路線 | 京成本線「勝田台」駅 徒歩8分 | |||||||||||||
| その他交通 | 東洋高速線「東洋勝田台」駅 徒歩8分 | |||||||||||||
| 所在地 | 千葉県八千代市勝田台7 | |||||||||||||
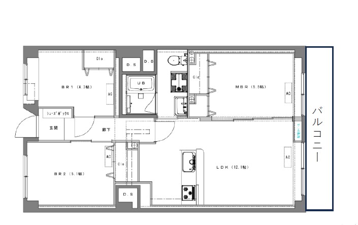
| 階数・所階階 | 7階建て2階部分 | 間取り | 3LDK | 間取り内訳 | LDK・洋×3 | |||||||||
| 築年月 | 1973年5月 | 築年数 | 構造 | 鉄筋コンクリート造 | ||||||||||
| 土地権利 | 所有権 | 地目 | 地勢 | |||||||||||
| 都市計画 | 市街化区域 | 用途地域 | 1種低層・2種住居 | 面積 | 専有面積:69.8㎡ バルコニー:8.25㎡ | |||||||||
| 建ぺい率 | 容積率 | |||||||||||||
| 接道 | ||||||||||||||
| セットバック | ||||||||||||||
| 法令上の制限 | ||||||||||||||
| 駐車場 | 空無し | バイク置き場 | 空無し | 駐輪場 | ||||||||||
| 管理形態 | 全部委託 | 日勤 | 管理会社 | (株)ケントク | ||||||||||
| 管理費 | 月/8,570 | 修繕積立金 | 月/2,000 | 特別積立金 | 月/20,000 | |||||||||
| 現状 | 空室 | 引渡時期 | 相談 | 引渡条件 | リフォーム後渡 | |||||||||
| 設備 | 公営水道・公共下水・都市ガス | |||||||||||||
| 備考 | ※特別積立金(期間:永久)、管理費等引き落とし手数料個人負担、金100円(税別)、組合役員は輪番制、外部所有者で就任できない場合は協力金月額5,000円が1年間賦課されます | |||||||||||||
| 取引態様 | 仲介 | |||||||||||||








